GUIDE PRICE £1,500,000










0 Bathroom 0 Reception
Commercial - Freehold
11 Photos
Hunmanby Gap
A rare opportunity to purchase a site ready for re-development close to Hunmanby Gap Beach with both views to the countryside and coast
The site consists of a parcel of land fronting Sands Lane, accessed from the A165 coast road between Filey and Reighton
The site has been granted full planning permissions for the conversion of 9 units - SCAZF24/01085/FL (PP-13173615)
The site will appeal to builders/developers and further details can be obtained from Nicholsons (Filey)
Viewing strictly via Nicholsons (Filey)











Description
Full planning permission given for the redevelopment of the existing farmstead to include dwellings together with associated works and landscaping at Moor Farm, Hunmanby Gap, Filey.
A further two dwellings will be included in a sale and which are currently occupied.
Planning Notice
https://publicaccess.northyorks.gov.uk/online-applications/applicationDetails.do?keyVal=SFYCXFNSLRT00&activeTab=summary
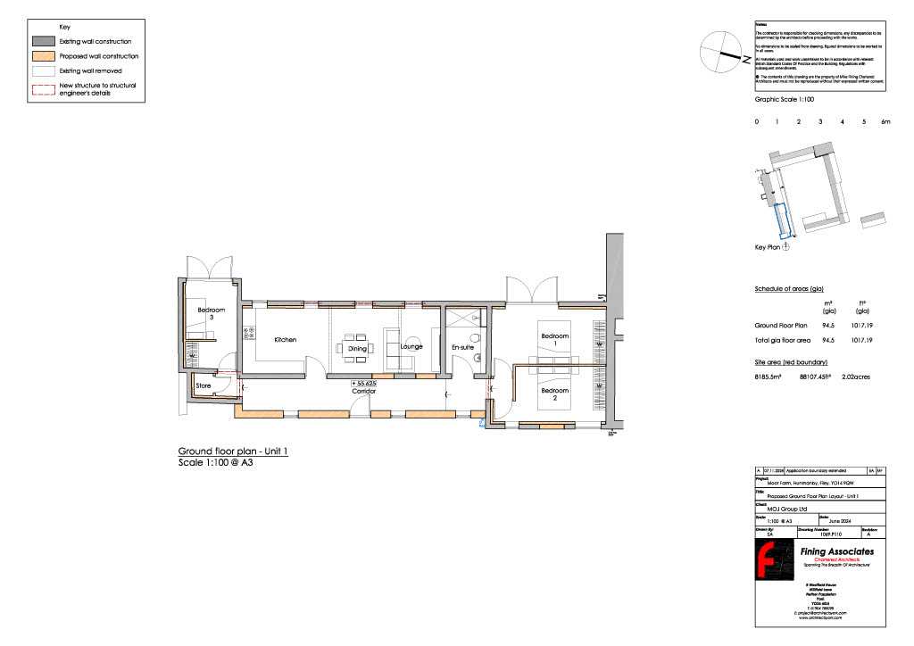
Bungalow Unit 1
Three Bedroom Bungalow
3 bedrooms (2 double bedrooms, 1 single bedroom / office)
Shower room
Open-plan living accommodation
Westward-facing aspect with views over surrounding fields
Guide Price: £400,000
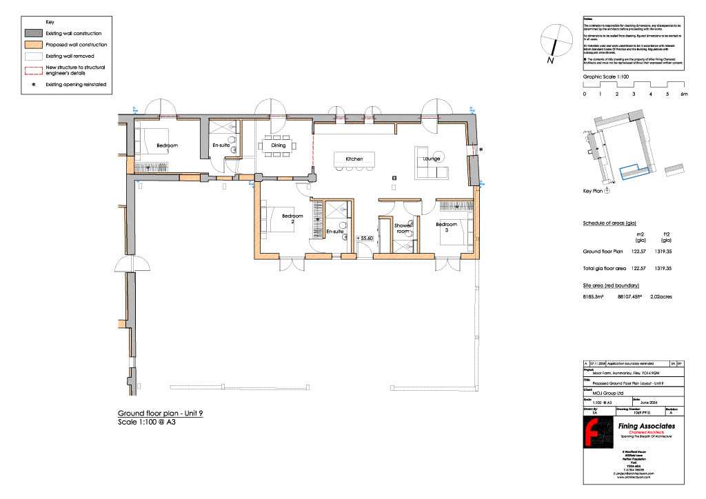
Bungalow Unit 9
Three Bedroom Bungalow
3 double bedrooms
3 en-suite shower rooms
Open-plan living accommodation
South-facing aspect with additional north-facing views into the courtyard gardens
Guide Price: £495,000
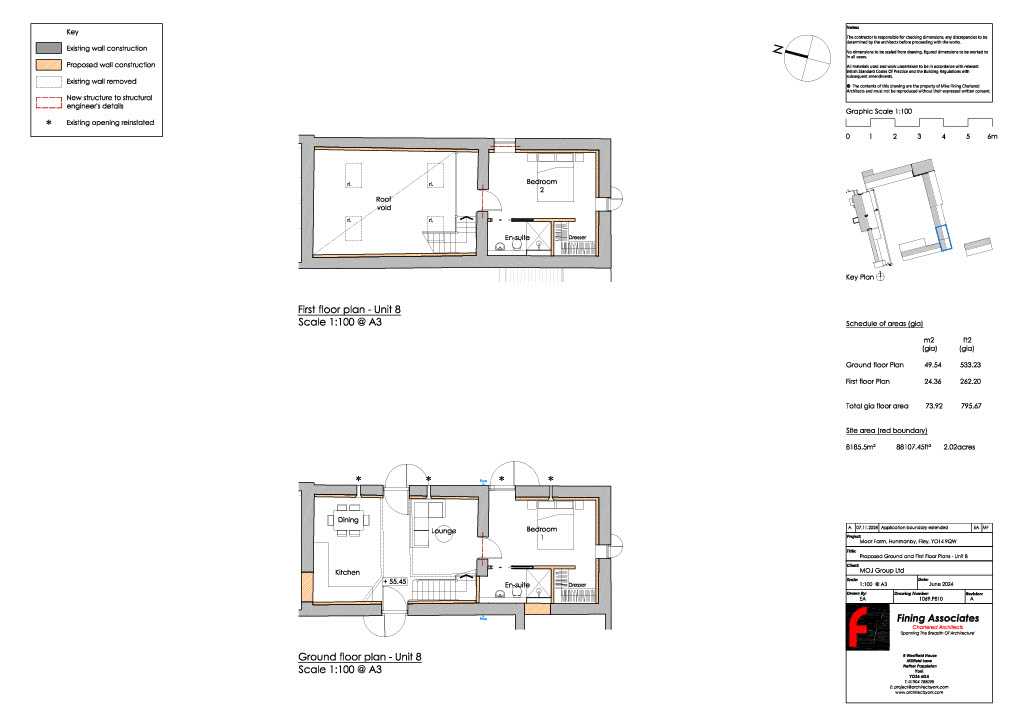
House Unit 8
Two Bedroom House
2 double bedrooms (1 ground floor, 1 first floor)
2 en-suite shower rooms
Galleried mezzanine overlooking vaulted open-plan living area
Highly desirable position within the development, enjoying both east and west-facing aspects
Guide Price: £350,000
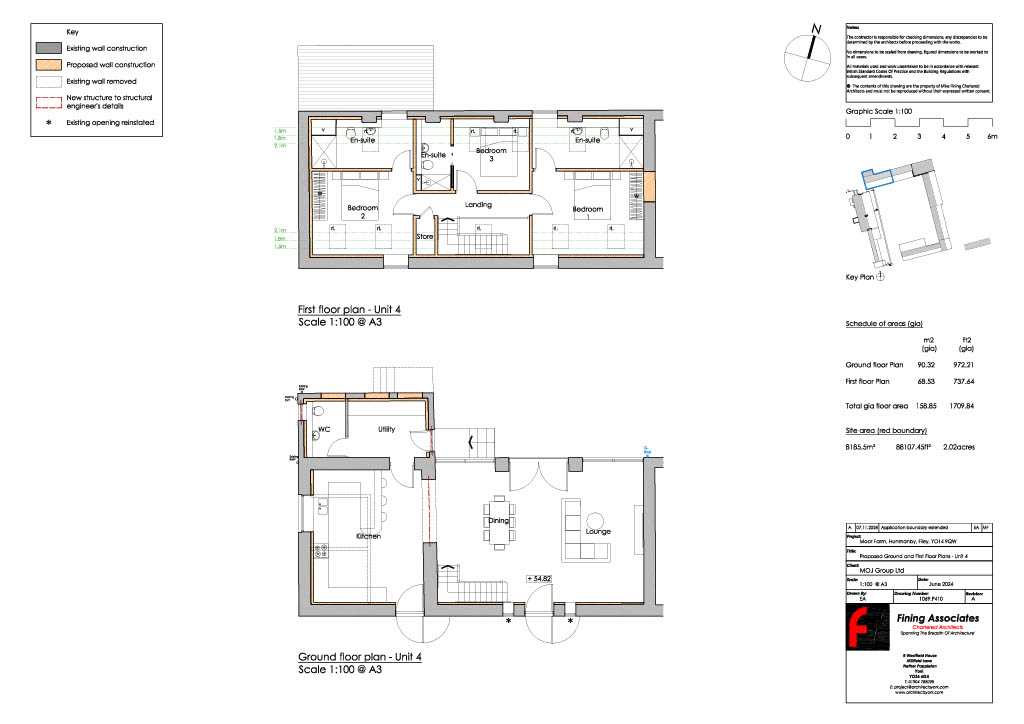
House Unit 4
Three Bedroom House
3 double bedrooms
3 en-suite shower rooms
Utility room and separate WC
Open-plan living accommodation
Guide Price: £525,000
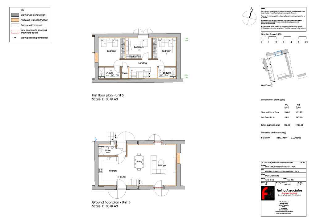
House Unit 5
Three Bedroom House
3 double bedrooms
2 en-suite shower rooms
Additional ground floor shower room
Open-plan living accommodation
Guide Price: £450,000
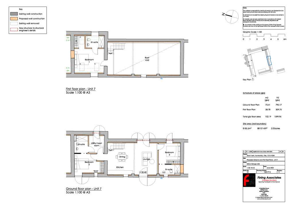
House Unit 7
Three Bedroom House
3 double bedrooms (1 first floor bedroom with en-suite, 2 ground floor bedrooms both with en-suites)
3 en-suite shower rooms
Utility room / boot room
Open-plan living accommodation
Prime position within the development with east and west-facing aspects
Guide Price: £500,000
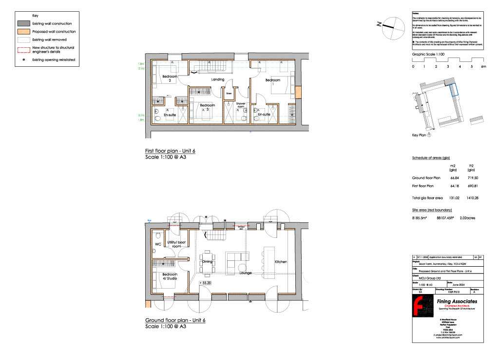
House Unit 6
Four Bedroom House
4 double bedrooms
2 en-suite shower rooms
Shared shower room serving Bedroom 4 (ground floor) and Bedroom 3 (first floor)
Downstairs WC
Utility room / boot room
Open-plan living accommodation
One of the best positions within the development, enjoying both east and west-facing aspects
Guide Price: £550,000
Location
The site consists of a parcel of land fronting Sands Lane, accessed from the A165 coast road between Filey and Reighton
UPRN: 200003344589
Inspection
Strictly by appointment through the agents.
Disclaimer
These particulars are subject to constant review and updating. Comments under tenure, council tax, planning use and service availability are provided for guidance only and are not based on formal enquiry, which is outside the scope of our Agency instructions. It remains for purchasers to satisfy themselves as to the facts. We cannot therefore accept any responsibility for information provided in good faith which may subsequently require amendment. Measurements provided are approximate only and should not be relied upon for other purposes.
Mortgages
We will be pleased to offer mortgage advice for this property, details of which are available from our Filey Office by calling 01723 512968.
Advice will be given by Licensed Credit Brokers.
Written quotations on request.
Your home is at risk if you do not keep up repayments on a mortgage or other loan secured on it.
Reference: FCOM7688
Disclaimer
These particulars are intended to give a fair description of the property but their accuracy cannot be guaranteed, and they do not constitute an offer of contract. Intending purchasers must rely on their own inspection of the property. None of the above appliances/services have been tested by ourselves. We recommend purchasers arrange for a qualified person to check all appliances/services before legal commitment.
Contact Nicholsons (Filey Sales) for more details
25 Belle Vue Street, Filey, YO14 9HU | 01723 512968 | filey@nicholsons.uk.com